Hanne og Hans Nielsens gård og bedrift(er)
Havarthigaarden er en af de seks gårde i landsbyen Øverød, som nu er blevet en del af det nuværende Holte. Gården blev opført 1861-1866 på jorden fra en ældre gård, som var Hans Nielsens fædrene gård. Hanne Nielsen var datter af gårdejeren på nabogården, Vejlegaard, som lå på nordsiden af Søllerød Sø.
Driftighed
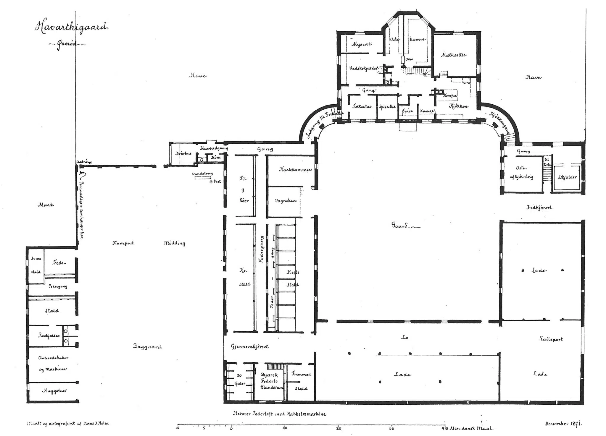
Allerede inden den nuværende gård blev bygget, var ægteparret Nielsen i gang. Hans Nielsen fik bygget et teglværk (Överöd Teglværk) tæt ved gården. Teglværket kom hurtigt kom op på en anselig produktion, blandt andet som leverandør til genopførelsen af Frederiksborg Slot. Foruden teglværket, drev Hans Nielsen gården med husdyr og agerbrug. Til at begynde med, afsatte de mælk til en holstensk mejerist. Da kontrakten med ham udløb, gik Hanne Nielsen over til at aftage mælken, for at starte mejeridrift. Begge så mulighederne ved at udvide. Hans Nielsen rev den gamle gård ned, og opførte de bygninger, der ligger her i dag. De indeholdt stalde og lader, som enhver gård har brug for, foruden et stuehus, større end de fleste, og hvor der især var gjort meget ud af, at kælderetagen kunne anvendes til mejeridrift. Gården gav de navnet Havarthigaard, med henvisning til Hans’ families hjemstavn på Hvidovrekanten. ”Hawerthi” er den gamle middelalderbetegnelse for Hvidovre – heraf Havarthi.
Ost og iværksætteri
Hanne Nielsen gjorde meget for at dygtiggøre sig indenfor osteproduktion og begyndte at tage elever ind. De boede på stuehusets 1. sal og arbejdede i kælderen. Hanne Nielsen blev Danmarks førende gårdmejerist og blev kendt både herhjemme og i udlandet, ligesom hun fik adskillige priser for sine produkter. Dette førte til, at hun blev ”Kongelig Hofleverandeurinde af Meieri Produkter” og fik tilladelse til at kalde en af sine oste for ”Chr. IX Ost”. Hans Nielsen døde i 1902 og Hanne Nielsen døde i 1903 og gården overtoges af deres datter Ane Dorthea og hendes mand, Jens Ole Jensen. Allerede i 1912 forpagtedes gården til en 23 årig fynbo, ved navn Frederik Clausen, som samme år giftede sig med Anna, som var ejernes datter. Anna og Frederik Clausen overtog gården helt i 1923, efter Ane Dortheas død (Jens Ole Jensen døde i 1920). Frederik Clausen (1889-1962) gik ind i kommunalpolitik og blev kendt som en af Søllerød Kommunes mest omstridte kommunalpolitikere. Han var formand for Sognerådet (borgmester) i perioden 1925-1943. I 1957 solgtes gården til vognmand Aksel Sørensen.
Reddet fra udstykning
Havarthigaarden blev sidst i 1960’erne, i henhold til lov om tilbudspligt (p.g.a. arealstørrelsen) tilbudt Søllerød Kommune, da vognmand Aksel Sørensen ikke ville videreføre sit erhverv p.g.a. alder. Søllerød kommune udarbejdede planen for arealet og havde her planlagt gården nedrevet og ca. 10 villaparceller udstykket. Planen kom bl.a. til høring i voksenundervisningsnævnet. I dette udvalg drøftede man planerne. Udvalgsmedlem Hanne Høeg, som repræsenterede Dansk Kvindesamfund fik sagens beslutninger udsat til næste møde. På dette tidspunkt blev hele skovlyområdet planlagt og bebygget med 180 villaparceller. I den statutbestemte grundejerforening havde man længe forsøgt at finde mulighed for at skaffe fritidsområde for børn og voksne. Skovlyskolen var ikke planlagt på dette tidspunkt. Det lykkedes Skovly Grundejerforening at samle mange andre foreninger i Holteområdet og forelægge ideen om at købe og indrette Havarthigaarden til fritids-formål. Det viste sig, at der i Søllerød Kommunes regi befandt sig 200.00 kr. til kulturelle formål, stammende fra Holte Handelsforenings salg af den lille tekniske skole på Kongevejen – hvor senere udbygningen af Ny Holte skole blev gennemført. Det lykkedes, at overbevise foreningen om, at pengene skulle bruges til Havarthigaarden og kommunen frigav midlerne, dog forlangte man, at jorden blev frasolgt til Statsskovvæsenet.
I 1973 blev den selvejende institution Havarthigaarden dannet, styret af et repræsentantskab, bestående af repræsentanter for lokale institutioner, foreninger og kommunen.
Links til andre vinkler, ost og historier om Hanne Nielsen og hendes bedrifter:
Spændende podcast: Normbryderne
Nyeste podcast fra Ostensnak.dk v/Camilla Bojsen-Møller: Bliv dus med din havarti. I studiet har hun ostemester Bjarne Andersen fra Them Andelsmejeri samt ikke mindst vores bestyrelsesformand Niels Friis-Hansen
Billedet nedenfor er farvelagt ved hjælp af AI til en artikel af Dansk Industri. Klik på billedet og læs artiklen.

